Exibition Design
2002
New construction
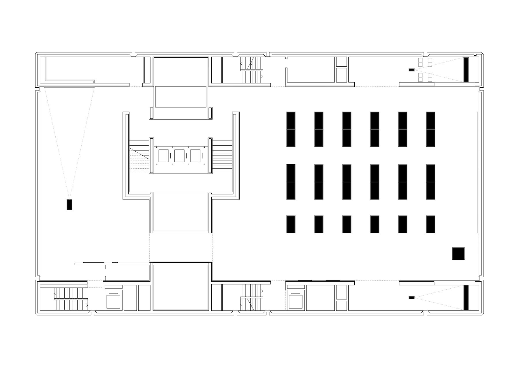
Artaud is a figure and as such, as a topos, as a form of existence, as a form of existentialism, is difficult to exhibit. The conception of the exhibition architecture deals with the most complex collection of materials by and about Antonin Artaud to date, which was brought together by Cathrin Pichler and her Swiss colleague Hans Peter Litscher in years of research and search.
Despite all security requirements, Jabornegg & Palffy did everything possible to allow Artaud to act immediately and simultaneously in all forms of expression. The presentation works with the documents that this life has left behind, spread out in around 30 showcases and showcases. In addition to photos, brochures and manifestos, the "Cahiers", the notebooks in which drawing and text merge, are also on display in the Museum of Modern Art. In addition, sound and video installations complete the entirety of the exhibition.



















