Residential and commercial buildings
2018
Redevelopment + Extension + Studie
9,600 sqm
The project to build a large bakery to supply Viennese workers was launched in 1900 and took concrete form in the shape of the Hammerbrotwerke, erected in 1909 in Schwechat on the site of a former mill known as the Jesuitenmühle.
The large Vooruit bakery built in 1906 in the Belgian city of Ghent, which was organised on a cooperative basis, offered a reference for the Viennese building project.
Also organised as a cooperative, from the very start the Hammerbrotwerke was able to process 100 000 kilos of flour to make bread in the space of 24 hours and could supply a large part of Vienna from the base in Schwechat. In order to deal spatially and logistically with these amounts a production facility of considerable size was needed, which was planned by the architect brothers Hubert and Franz Gessner.
The large bakery ceased operation in 1972 and the works were subsequently sold. In the years that followed the industrial complex became increasingly dilapidated and today parts of it are in a ruinous condition.
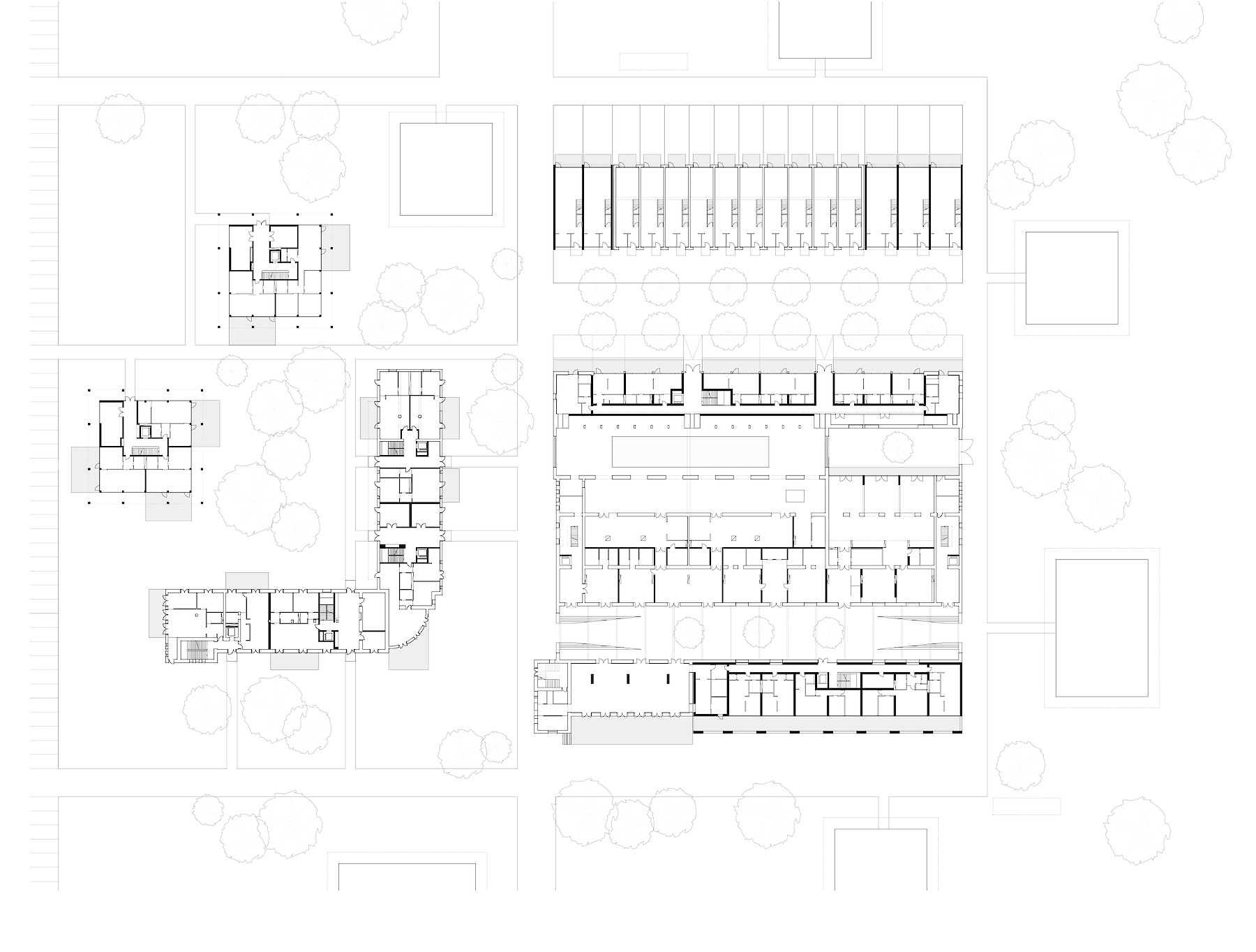
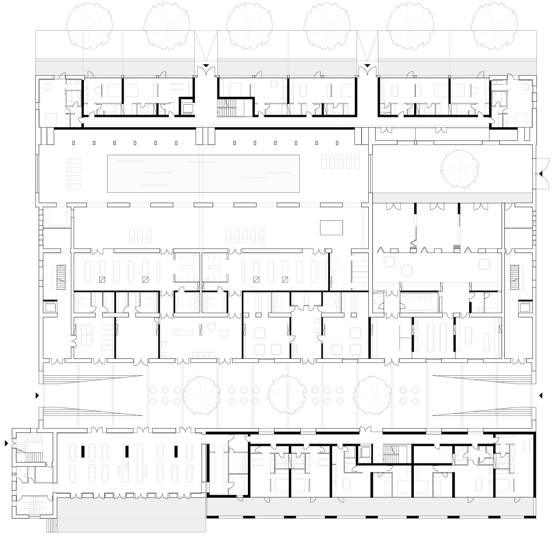
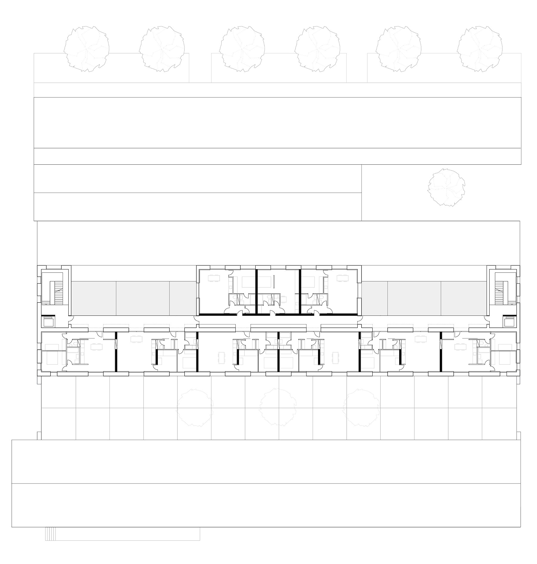
Following a further change of owner in 2018, it is planned to convert this historical ensemble of buildings to provide housing alongside areas for restaurants and businesses. As a traffic-free urban space the grounds of the former Hammerbrotwerke, which are dotted with numerous trees, will become a park in the middle of a new quarter.






















































