Residential building
2018
Redevelopment + Extension
220 sqm
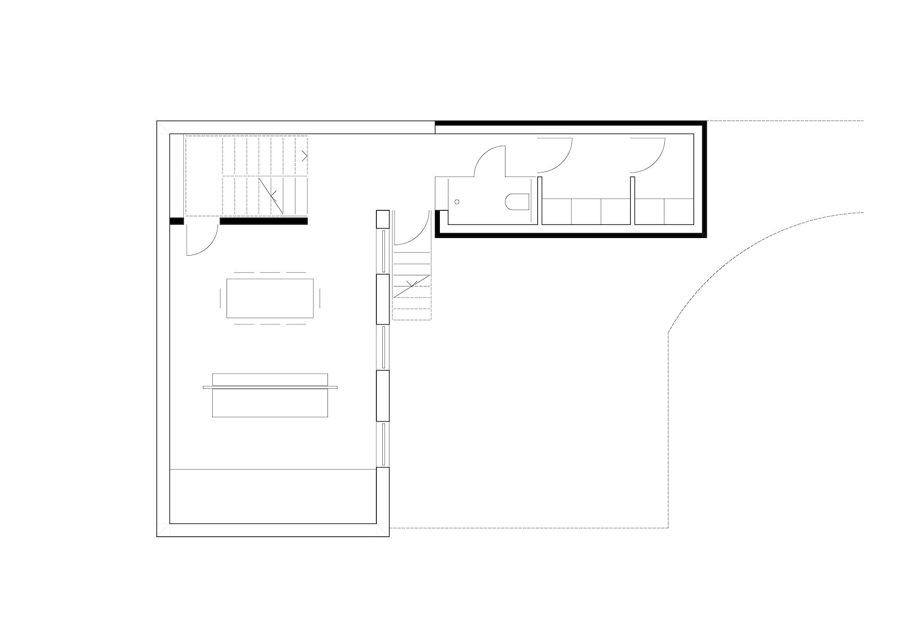
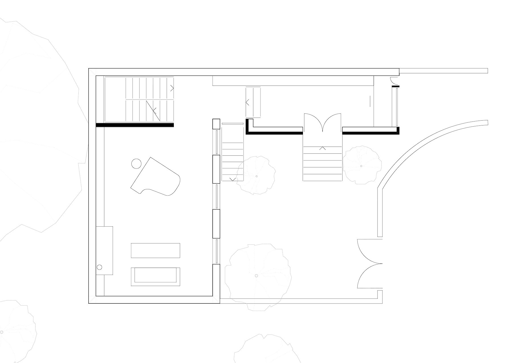
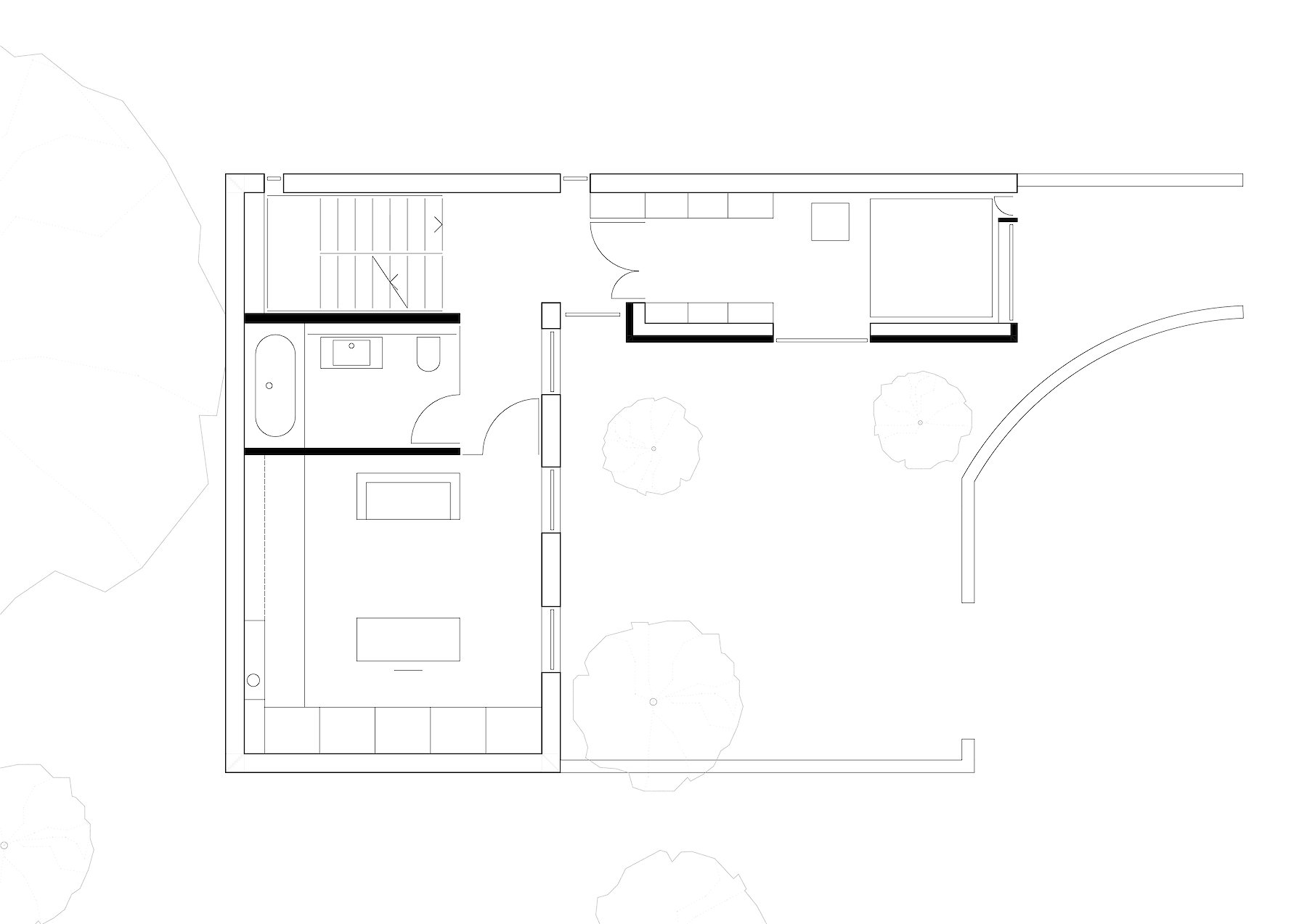
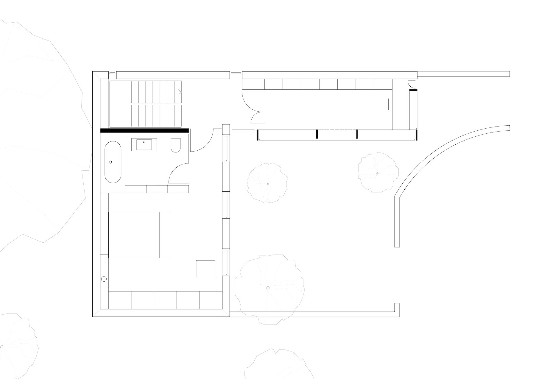
This private street in the 14th Arondissement in Paris ends in two buildings placed around a small forecourt that terminate the urban space. Additions made to both buildings in the course of recent decades had partly altered their original appearance.
A side wing that was added to House R attempted unsuccessfully to imitate the architecture of the main building that dates from the 19th century. As this addition was not only a formal but also a structural failure, it was decided to demolish it and erect a new building
The newly built addition also leads to a restructuring of the existing building, which now offers not only a spatial connection to the new element but can also accommodate the new functional requirements of the spatial programme.














