Wohnhochhaus
2017–2022
Neubau
30.753 m²
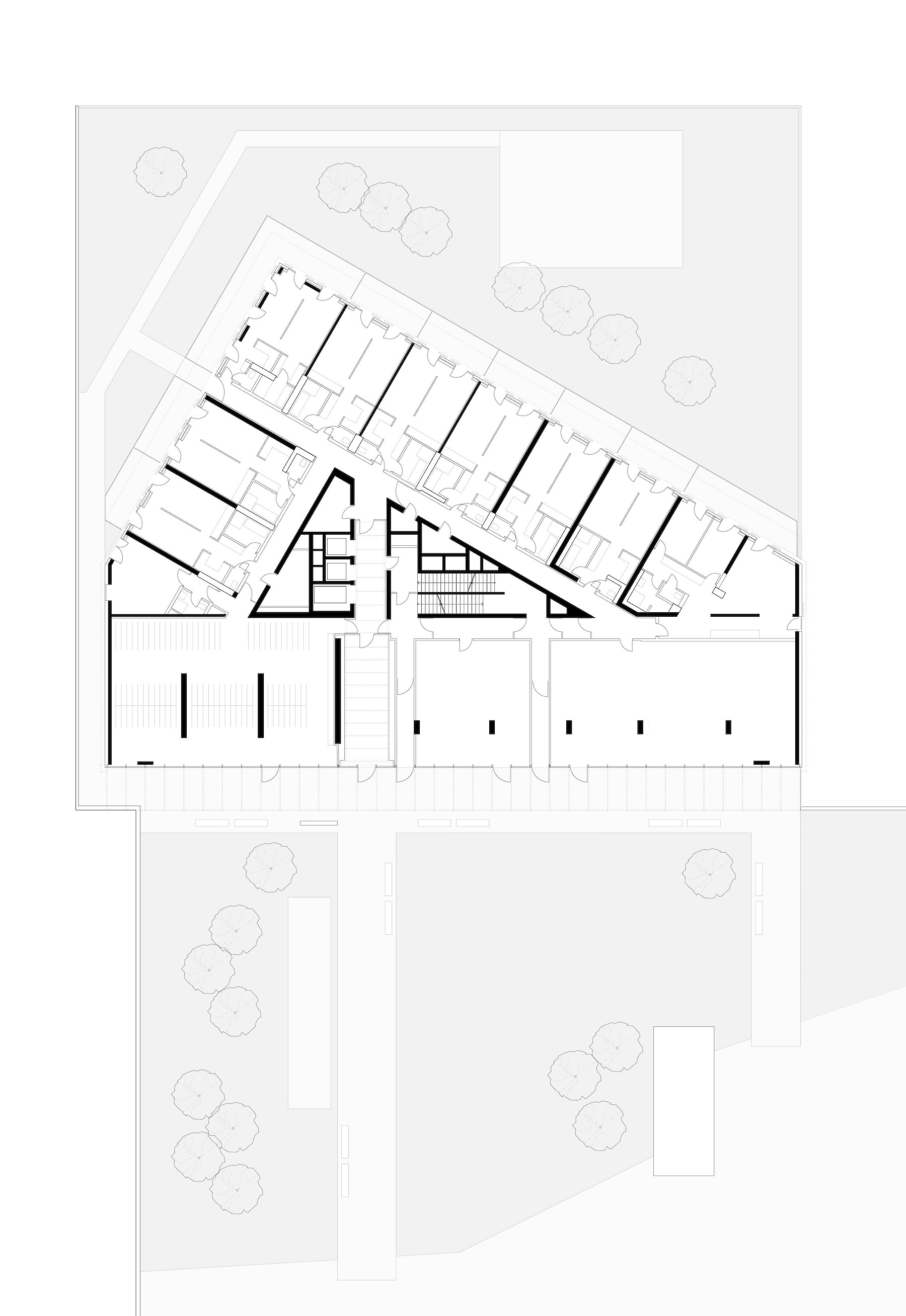
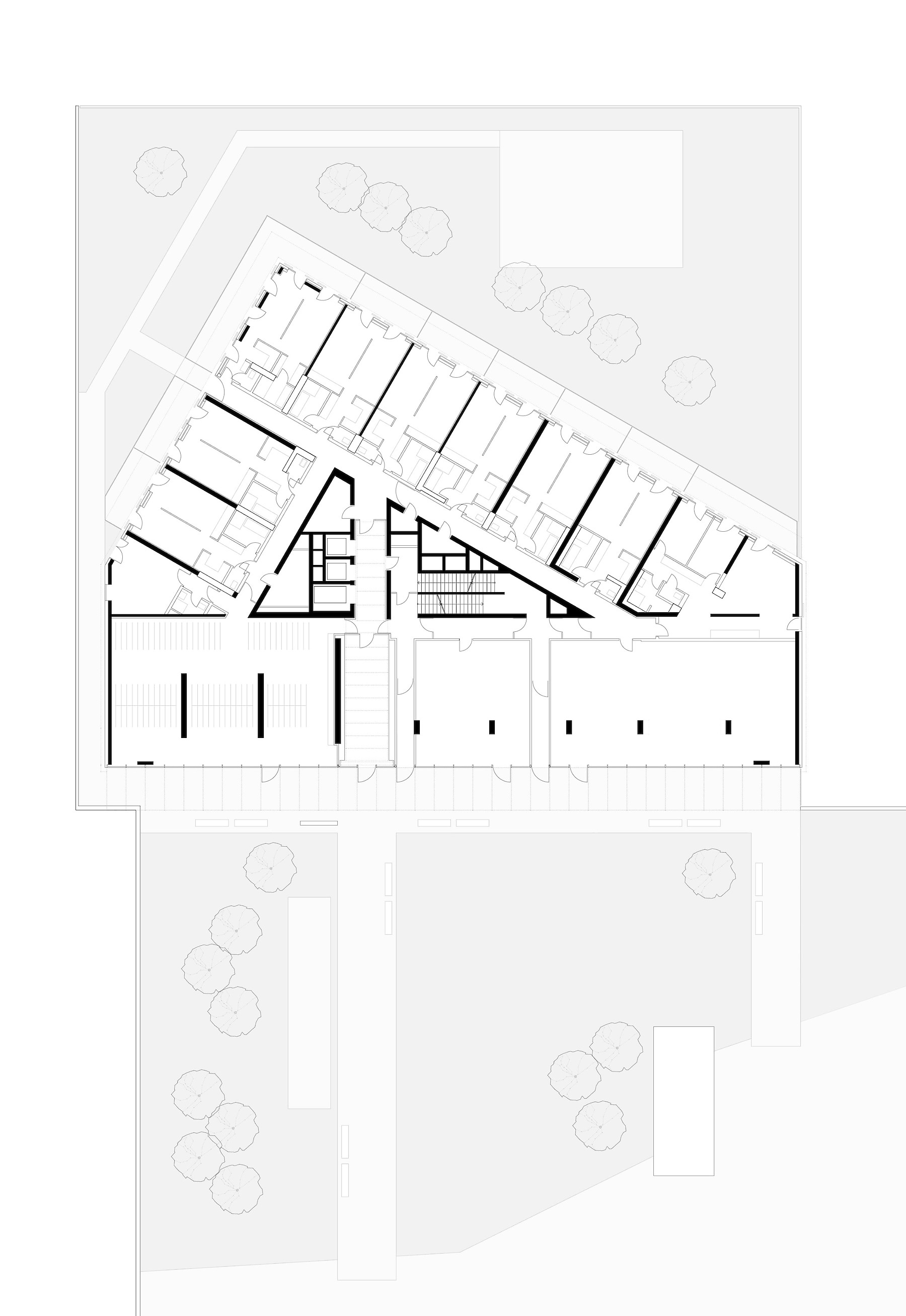
Zwischen Hochhäusern, einer Hochgarage, wie auch einer Schallschutzwand befand sich auf der
Donauplatte in peripherer Lage ein letztes Restgrundstück, dessen verwinkelter Zuschnitt
keinen besonderen Anreiz für eine zukünftige Entwickelung darstellte.
Die sinnvolle Bebaubarkeit der unattraktiven Liegenschaft wurde in diesem Sinne auch lange Zeit bezweifelt.
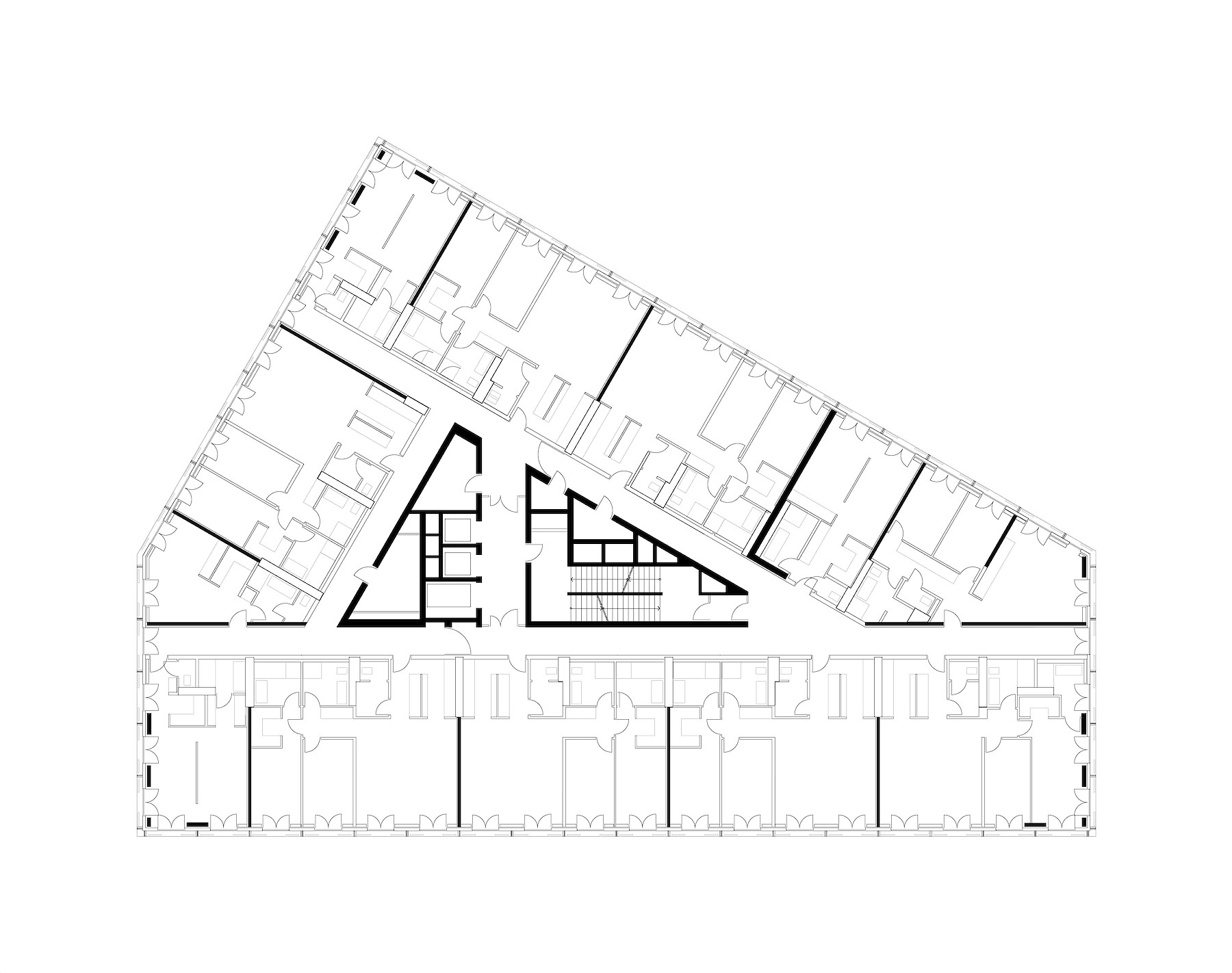
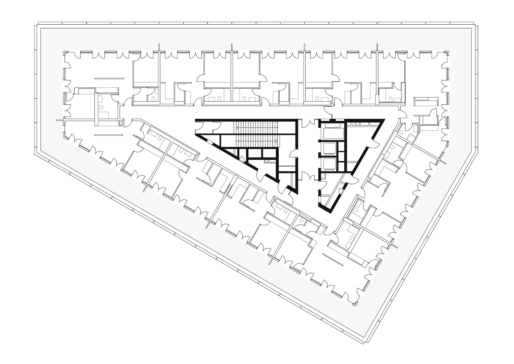
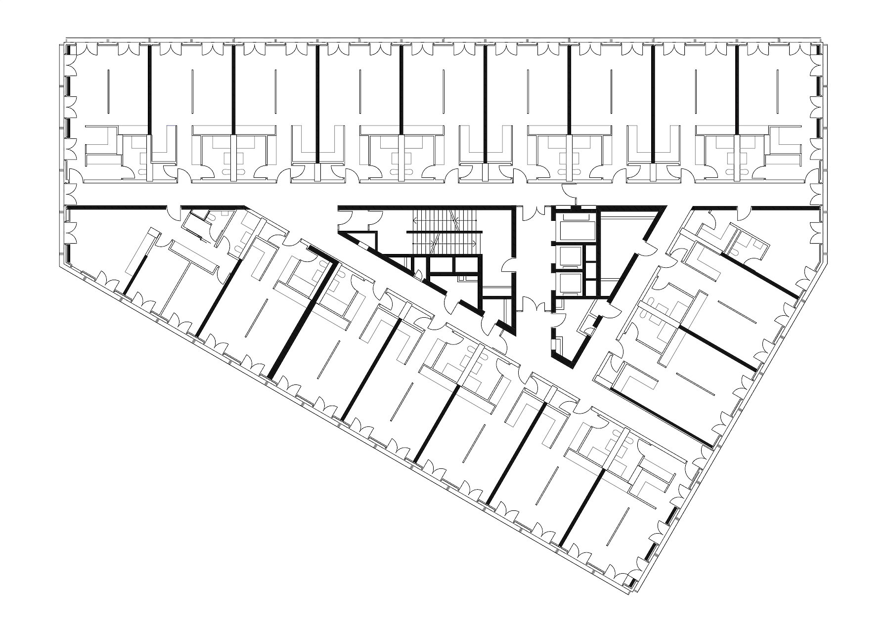
Der unregelmäßige Zuschnitt des Entwurfs leitet sich so nicht nur aus den umgebenden baulichen
Randbedingungen ab, sondern auch aus dem zwei Stundenschatten, der sich aus Höhenentwicklung
und Grundrisskontur des Gebäudes gegenüber seiner Nachbarschaft ableitet.
Begrenzt wird die Höhenentwicklung des Neubaus von einem verfügbaren Volumen das innerhalb
der Gesamtwidmung der Donauplatte noch nicht beansprucht wurde, und somit für die weitere
Planung der DC Flats zur Verfügung stand.
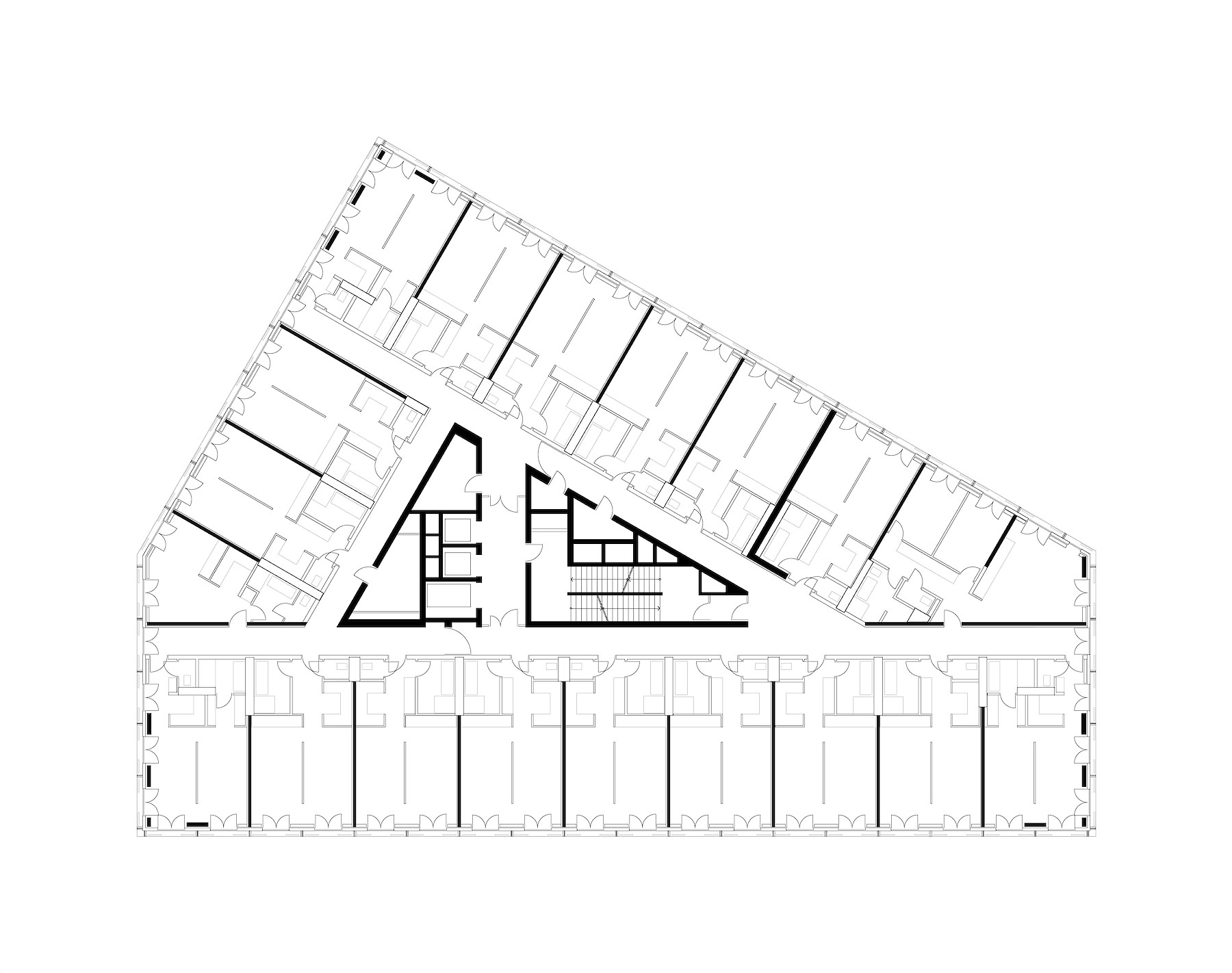
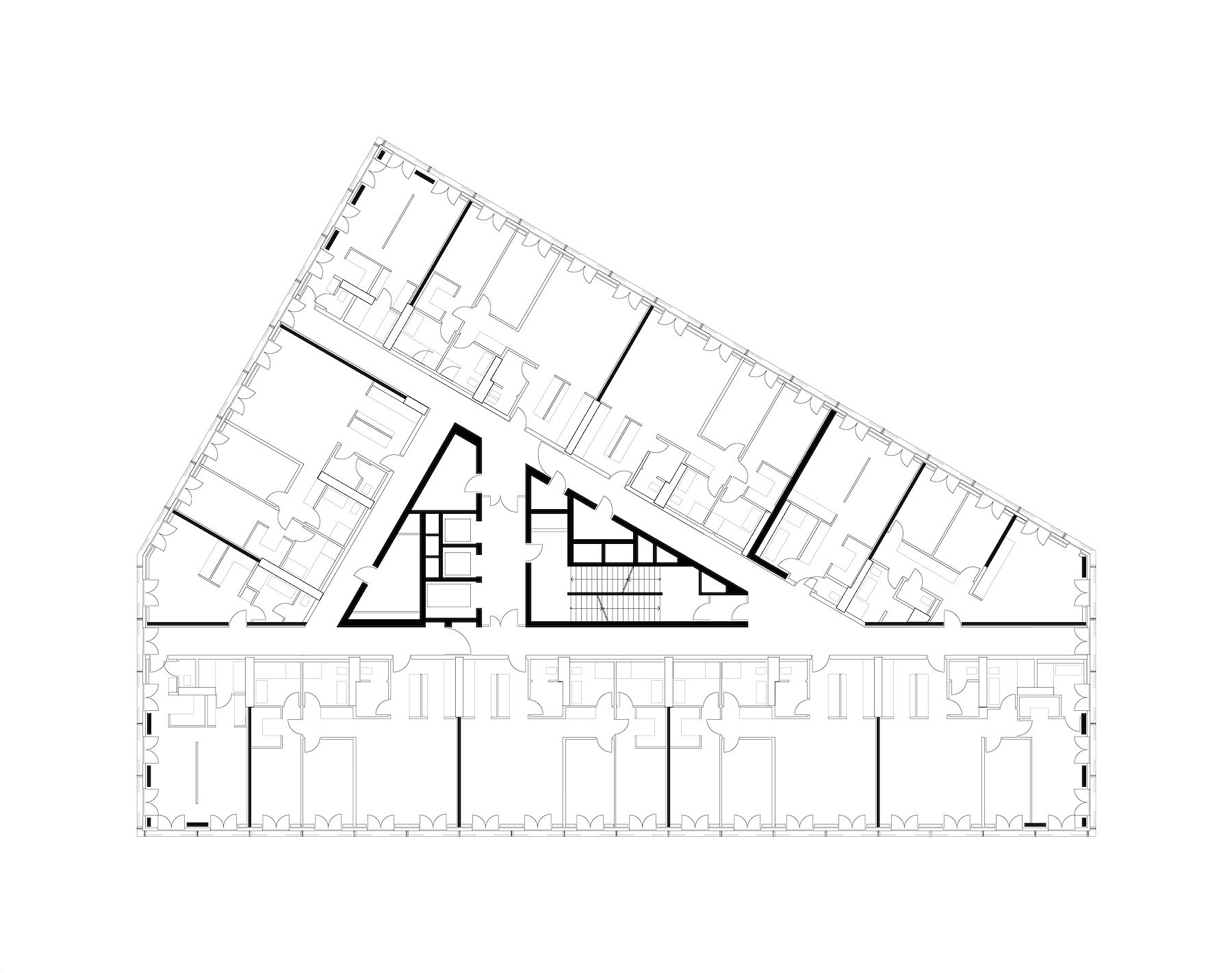
Der Neubau weist eine Durchmischung von Wohnungen unterschiedlicher Größen aus, die von
45 – 90m2 reichen. Mit ansteigender Höhenlage der Stockwerke vergrößern sich die Formate der
angeordneten Wohneinheiten zunehmend. Unterhalb der Wohngeschoße befinden sich drei
Geschoße einer Hochgarage, die der Stellplatzanforderung des Wohnbaues Rechnung tragen und mit
den angrenzenden Bestandsgaragen verbunden sind. Die Garagengeschoße können durchaus als
Bauwerkssockel interpretiert werden.
Die lastabtragende Struktur wird entlang der Fassade und dem zentralen Gebäudekern angeordnet.
Damit sind die Geschossflächen von allfällig statisch erforderlichen Einbauten weitgehend entlastet.
Innerhalb der angeordneten Tragstruktur besteht nunmehr auch die Möglichkeit dem Wunsch nach
einer Veränderung von Wohnungszuschnitten in Zukunft auch entsprechend Rechnung tragen zu
können. Die Bauteilaktivierung steht in keinem Wiederspruch zu dieser Anforderung.
Gegenüber dem Anspruch nach einer flexiblen Raumaufteilung wird auch mit einer modular
geprägten Gebäudehülle reagiert.
Die Summe der modularen Fassadenelemente bildet die Gebäudehülle entlang des fünfeckigen
Gebäudekörpers aus. Jedes einzelne Element nimmt ein französisches Fenster auf, das einen
ausreichenden Tageslichteintrag auch in Wohnungen von kleinem Flächenzuschnitt garantiert.
Die Dosierung des Lichteintrages in die Wohnbereiche erfolgt über Schiebeläden die vor der
Fensterebene angeordnet sind. Die Schiebeläden nehmen damit die Funktion des Sonnen- und
Blendschutzes wie auch den der temporären Verdunkelung wahr.
Die individuelle Nutzung der Schiebeläden bildet nicht nur das soziale Leben im gesamten
Fassadenbild ab, sondern sie steht auch mit ihrer unregelmäßigen Anordnung in einem Kontrast zur
Grundstruktur der Fassadengeometrie. Damit bietet die wandelbare Fassade täglich einen neuen
Anblick, der mit der Dynamik der jeweiligen Nutzung neu und unwiederholbar wesentlich die
Charakteristik der DC Flats in der Außenwahrnehmung bestimmt.




































































