Nahaufnahmen des Beethovenfrieses aus restauratorischer und künstlerischer Sicht
2012–2013
Neubau + Erweiterung
42 m²
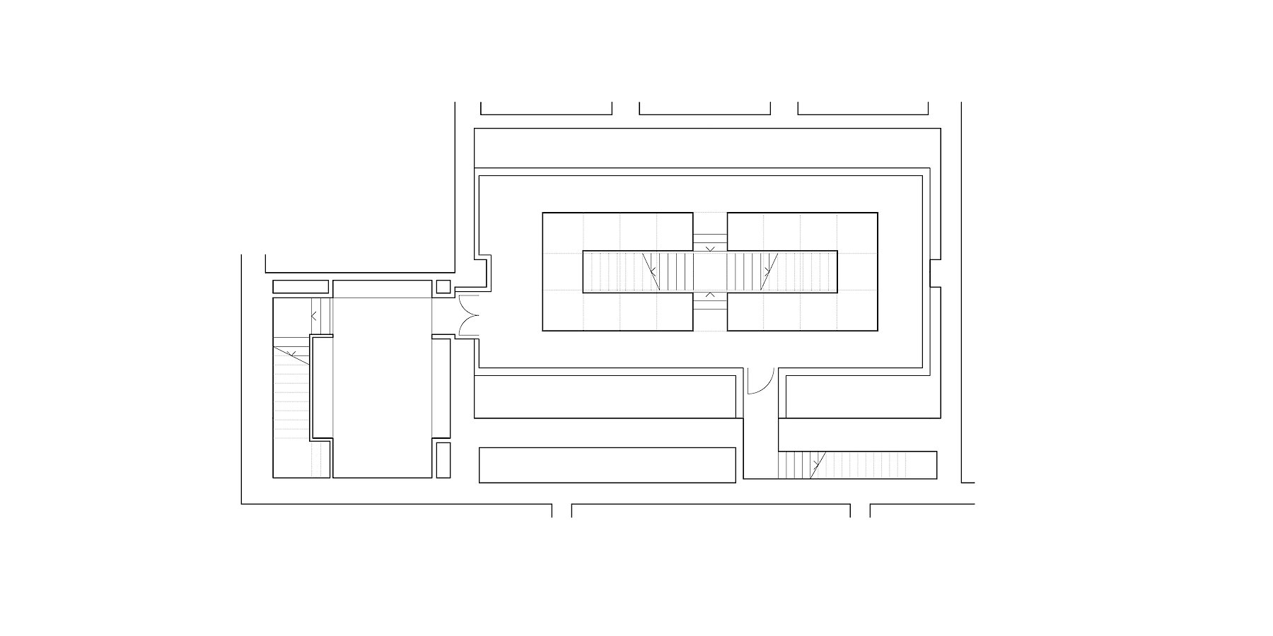
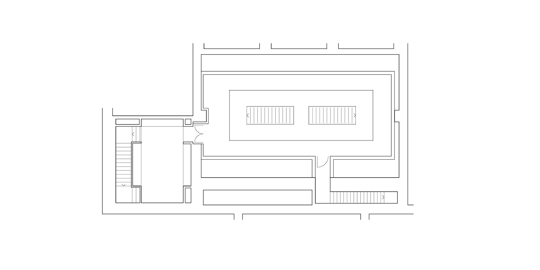
Anlässlich des 150. Geburtstages von Gustav Klimt im Jahr 2012 entwickelt Gerwald Rockenschaub für den Raum des Beethovenfrieses in der Wiener Secession eine Plattform, die den BesucherInnen ungewohnte Perspektiven und neue Standpunkte in der Wahrnehmung dieses Schüsselwerks von Gustav Klimt ermöglicht.
Seine skulpturale Intervention erlaubt es erstmals, den Raum umspannenden und in einer Höhe von 3 bis 5 Metern installierten Fries auf Augenhöhe zu betrachten. Beide Arbeiten, sowohl Klimts Beethovenfries, als auch Rockenschaubs Plattform, treten dabei in einen gleichberechtigten Dialog.
Die Plattform ist zweckmäßig und funktional, behauptet sich aber zugleich in ihrer Objekthaftigkeit als eigenständiges Werk. Rockenschaubs Gestaltung weist zahlreiche charakteristische Merkmale seiner künstlerischen Sprache auf: die Verwendung handelsüblicher Baumaterialien, die Monochromie der Flächen und der zeichenhafte Minimalismus. Mit der Plattform in der Secession führt er zudem eine seit den späten 1980er Jahre entwickelte Werkgruppe von Installationen fort, in denen er mittels Podesten, Sitzbänken, Vorhängen oder Trennwänden die BesucherInnen im Ausstellungsraum lenkt, Wahrnehmungsformen verändert und den architektonisch-sozialen Raum neu codiert.
Die Umsetzung erfolgte durch Jabornegg & Pálffy.





























