Bekleidungsgeschäft
1992
Umbau
143 m²
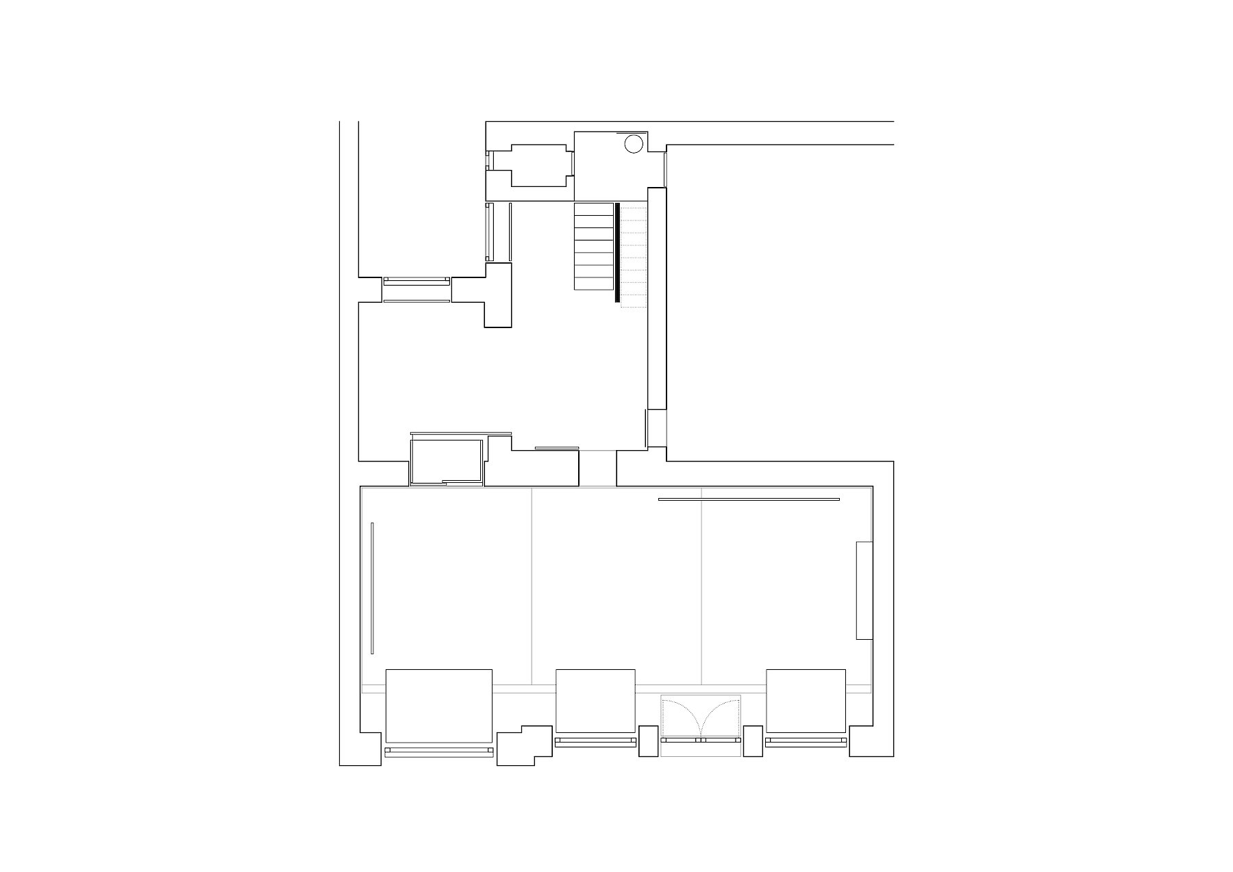
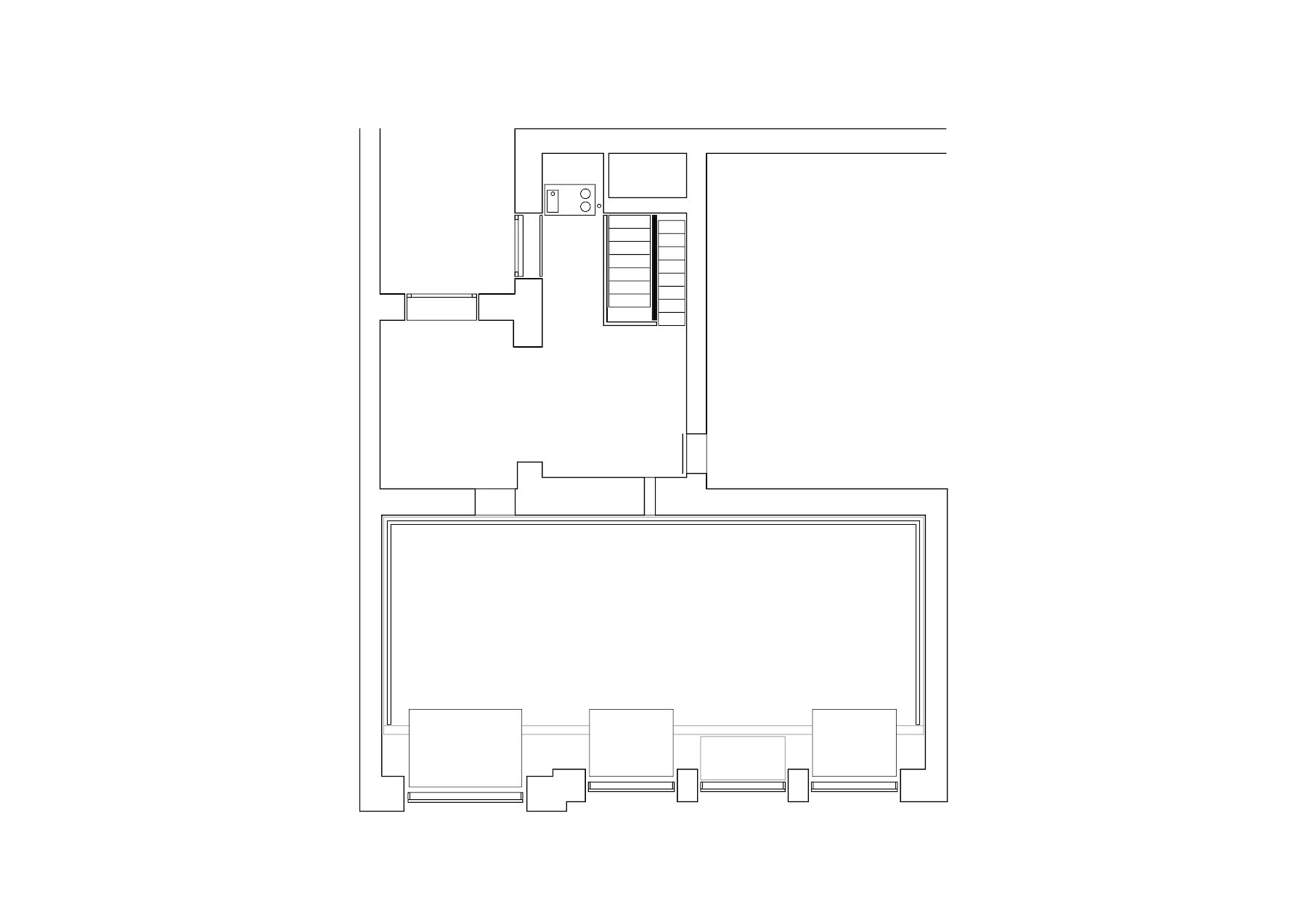
Um den Verkaufsraum sowie die angrenzenden Werkstätten in Erd- und Zwischengeschoß des 1880 errichteten Gebäudes in seiner ursprünglichen räumlichen Wirkung wiederherzustellen, mussten sämtliche Einbauten der vorigen Nutzer radikal entfernt werden. Funktionales Ziel war es, die Anordnung der Verkaufsexponate in einer Weise zu ermöglichen, die ihre zentrale Wirkung betont und eine störende Konkurrenz mit dem Mobiliar ausschließt.
Der Verkaufsraum wurde in zwei Flächen unterschiedlichen Niveaus geteilt, die auch der Nutzung entsprechen. Die untere Ebene mit rauem Betonboden bildet zu den Straßenauslagen hin einen Ausstellungsbereich, durch den das höhere Niveau der Verkehrsfläche deutlich von der Außenfassade abgesetzt wird. Als dritte Ebene -gleichsam über den anderen schwebend- sind im Ausstellungsbereich horizontale Flächen angeordnet, auf denen die Exponate präsentiert werden. Den Nutzungsbereichen werden auch unterschiedliche Kunstlichtqualitäten zugeordnet; ein gerichtetes Licht für die Exponate, sowie ein über stoffbespannte Rahmen gestreutes Licht als Grundbeleuchtung. Die bespannten Rahmenfelder der Beleuchtung ergeben eine zusätzliche Fläche, die Teile des Innenraumes auch als Außenfassade wirken lässt, wodurch sich auch Änderungen an der historischen Fassade erübrigen.






















