Hotel
2004–2007
Neubau
39.000 m²
Auf den Wunsch nach einer erweiterten und deutlich sichtbaren Identität des Ortes reagierte der Entwurf mit einem Ensemble von drei Baukörpergruppen, die mit ihrer gemeinsamen Formensprache eine Einheit bilden, auch wenn sie nicht immer in unmittelbarer Nachbarschaft zueinander angeordnet sind.
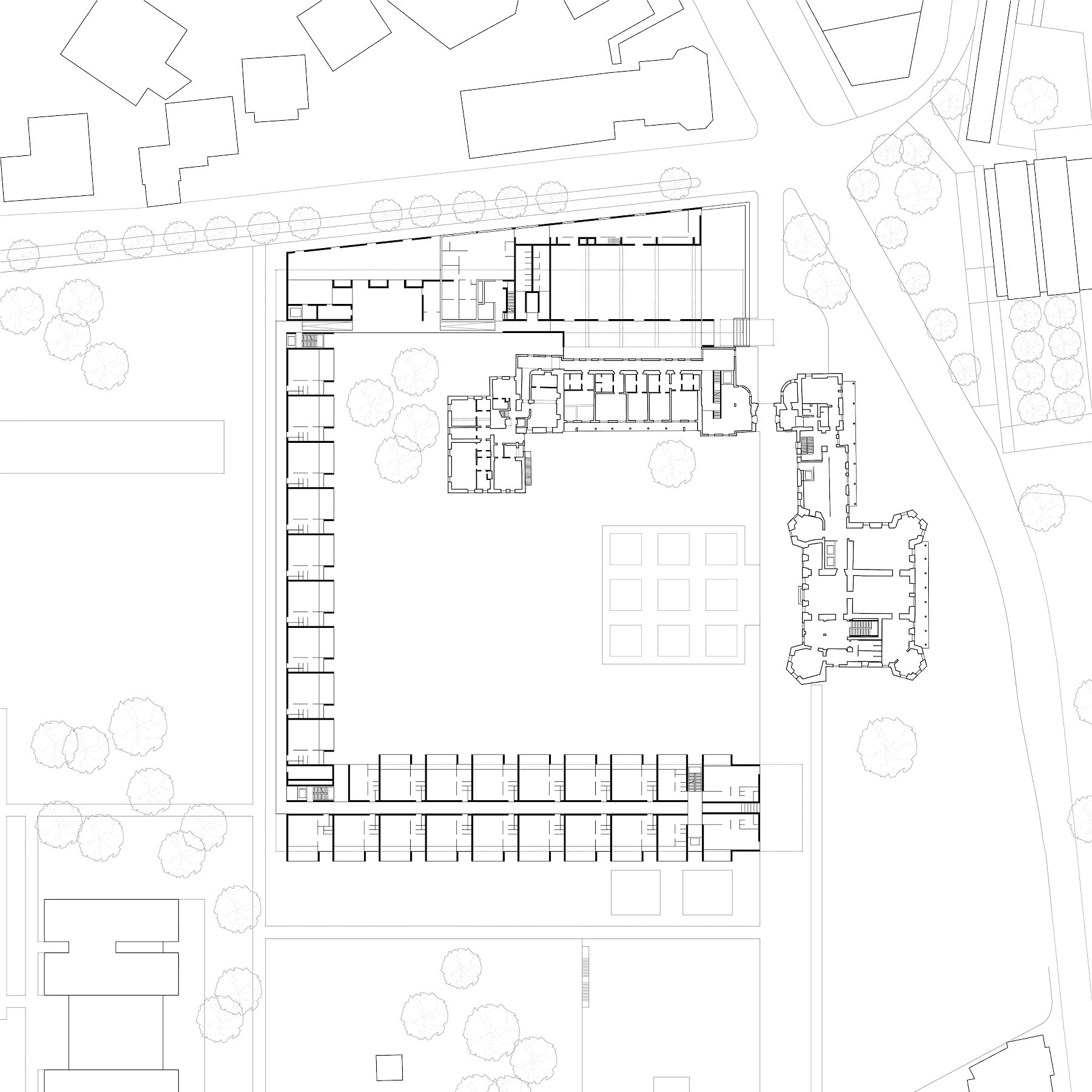
Die einzigartige Lage des Planungsareals sowie die prägnante Baukörperform des Schlosses wirken im Verhältnis zur Umgebung wie ein Solitär. In der Epoche des Historismus erfolgten Zubauten, die jedoch innerhalb der Gesamtanlage durchaus das Bild verstreuter Torsi vermitteln. Dieser Eindruck war auch Anlass für die Umschließung des Areals mit einer Bebauung, die den historischen Bauteil in das Zentrum der Wahrnehmung stellt. Diese Anordnung wirkt sich aber auch vorteilhaft auf die angestrebte Nutzung aus, zumal der nunmehr räumlich so umschlossene Parkteil – innerhalb einer lebhaften Tourismusgemeinde – dem Wunsch nach Abgeschiedenheit und Exklusivität durchaus entspricht.
Der Mittel- oder Ausgangspunkt für die Erschließung der Gesamtanlage ist im Übergang zwischen Hotelerweiterung und Schloss angeordnet. Entlang einer linearen Verkehrsfläche sind die Haupttreppen des Neubaus sowie die wesentlichen Funktionsbereiche der Hotelanlage angeordnet. Der Promenadencharakter dieser Erschließungszone wird auch in der Ebene oberhalb wiederholt, doch ist er in dieser Lage nicht Funktionsbereichen, sondern möglichen Sichtbeziehungen zur Parklandschaft und dem See zugeordnet. Zum Straßenraum hin werden beide Flächen der Erschließung markant durch den Kurbereich getrennt, der auf diese Weise zur klaren Zäsur zwischen dem Parkareal und dem angrenzenden öffentlichen Raum wird. Die im Straßenbild sehr präsente Fassadenfläche des Kurbereiches wird zur Gänze in Glas aufgelöst und verliert damit nicht nur an Präsenz, sondern ermöglicht auch eine großzügige Sichtbeziehung zum See. Diese klar definierte Geländekante verändert die bestehende Geländetopografie und bewirkt im Parkareal einen neuen ebenen Flächenanteil.













































