Verwaltungsgebäude
1997–2000
Umbau + Erweiterung
4.300 m²
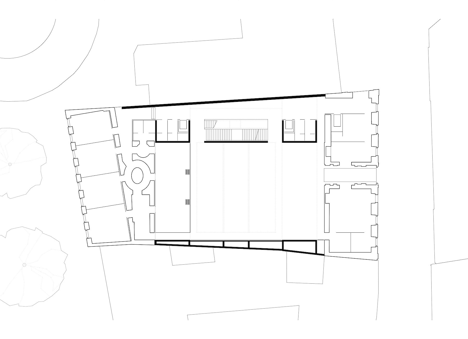
Der Baubestand wurde dort erhalten, wo er von historischem Wert ist und die Anforderungen des neuen Raumprogramms erfüllt. Im Inneren des Grundstückes erfolgte ein Teilabbruch, um die erforderlichen Flächen für den neuen funktionellen Bedarf zu schaffen. An den Längsseiten des Grundstückes wurden zwei neue Feuermauern errichtet, wobei neben der statischen Notwendigkeit eine der Mauern Teile der Gebäudeventilation aufnimmt, die andere entlang ihrer Oberfläche für Lichtstreuung sorgt.
Zwei vertikale Versorgungsschächte, zwischen denen linear die Gebäudeerschließung angeordnet ist, bilden mit den Außenwänden eine statische Einheit. Die neuen Bauteile sind durch Stahlverbundträger statisch ausgesteift und verbunden. Die stützenlosen Räume entsprechen dem Wunsch nach Nutzungsflexibilität.
Innerhalb des massiven Altbestandes werden die neuen Büroflächen und das Treppenhaus über einen gänzlich verglasten Innenhof belichtet. Dieser ist zur Halle mit einer Glasdecke, nach oben mit einer pneumatischen Luftkissenkonstruktion abgeschlossen.
Die Fortluft aus den Büroräumen wird in diesen Hofraum der Büroräume eingeleitet und zur Wärmerückgewinnung genutzt.
























































