Verwaltungsgebäude
2005–2008
Neubau
50.900 m²
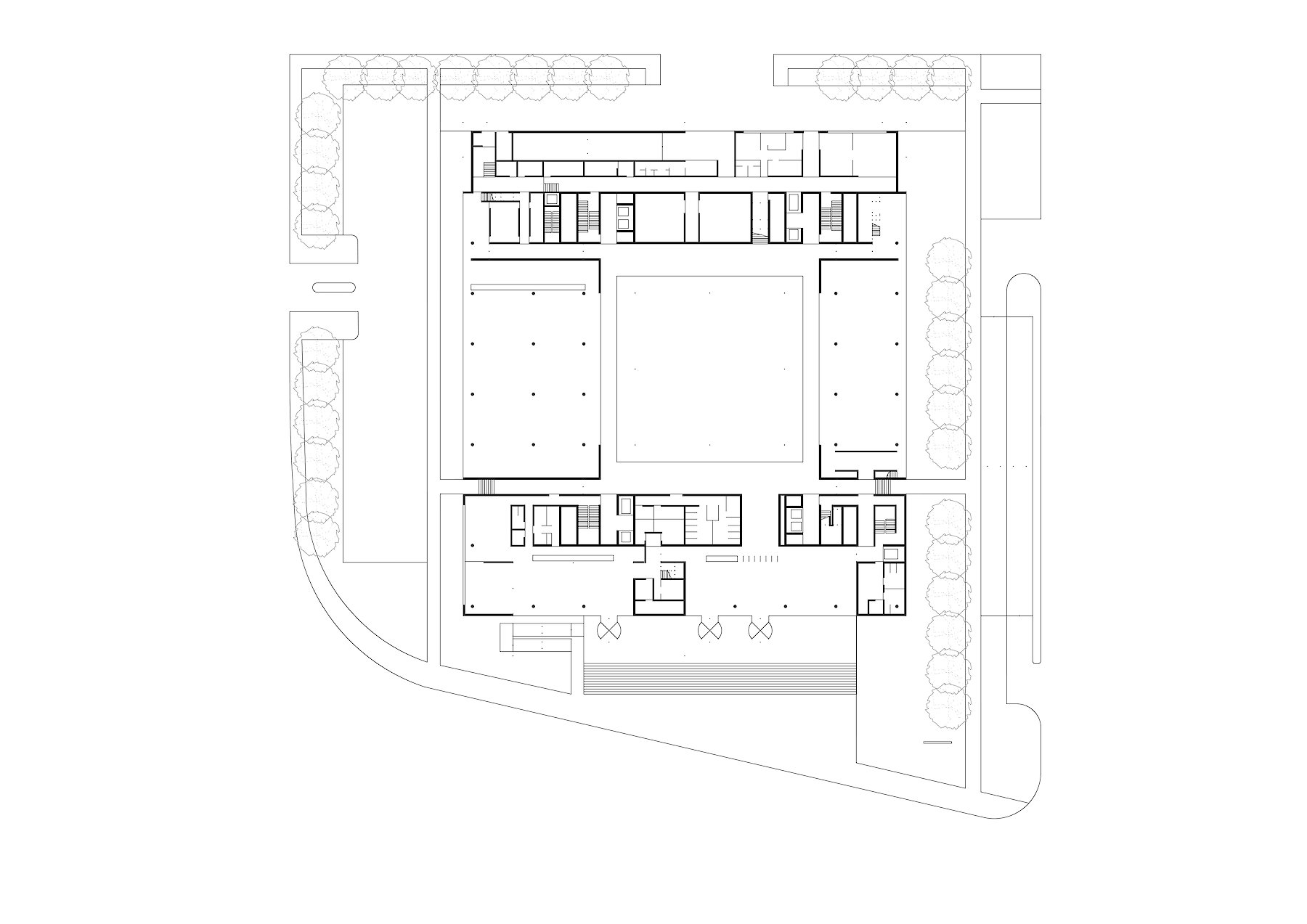
Das Verwaltungsgebäude wird von einer geometrischen Form bestimmt, deren Präsenz im städtebaulichen Umfeld nicht nur einen klaren Akzent, sondern auch für das Quartier einen neuen Schwerpunkt bilden soll. Der Baukörper ist mit einer Gebäudefuge in zwei unterschiedliche Bereiche der Nutzung und Oberfläche differenziert.
Die Erdgeschoßzone nimmt sämtliche öffentlichen Funktionen auf und bildet diese Tatsache transparent zu den angrenzenden Straßenräumen ab. Die Sichtbeziehungen sind so ausgeprägt, dass der Innenraum des Gebäudes durchaus als Teil des Stadtraumes interpretiert werden kann. Die Vorstellung von der hermetisch geschlossenen Wirkung eines Bankgebäudes wird durch diese Form der Raumbildung aufgelöst.
Das Erdgeschoß ist in seiner erhöhten Lage leicht vom Stadtraum abgesetzt und beschreibt so nicht nur seine Sonderstellung innerhalb der urbanen Bebauungsstruktur, sondern entspricht damit auch den Sicherheitsanforderungen einer Bank, ohne dazu das Bild von Massivität bemühen zu müssen.
Zentrales Element im Erdgeschoß ist ein überdachter Atriumhof, der als witterungsfester Außenraum innerhalb des Verwaltungsgebäudes genutzt werden kann. Die vier Haupterschließungen sind dem Atriumgang unmittelbar zugeordnet.
Die Gebäudekerne bilden über sämtliche Bürogeschoße die einzigen massiven Bauteile ab, zwischen denen in sämtliche Himmelsrichtungen zahlreiche Sichtbeziehungen in Stadt- und Landschaftsraum möglich sind. Diesem Anspruch wurde nicht nur mit der geschoßhohen Doppelfassade, sondern auch mit transparenten Trennwänden entsprochen.
Der Abschluss des Gebäudes wird mit einem pneumatischen, transparenten Luftkissendach oberhalb des Atriumhofes ausgebildet.



















































