Museum
2002
Umbau + Erweiterung
2.400 m²
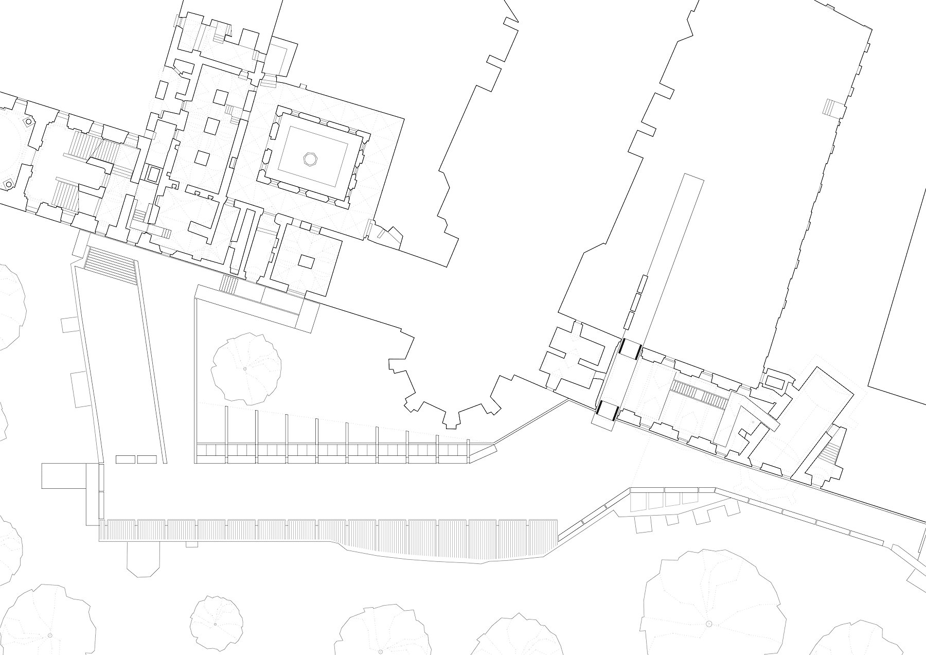
Die barocke Stiftsanlage Munggenasts stellt der Ausdehnung des Hauptprospektes die adäquate Freifläche der Altane gegenüber. Das einheitliche Niveau bietet nicht nur einen Ausblick in die angrenzende Landschaft, sondern auch von zahlreichen Standorten die Sicht auf die Hauptfassade des Stiftes.
Diese Altane wurde im Barock mittels Erdaufschüttungen oberhalb bestehender mittelalterlicher Kellergewölbe errichtet und war von den bis zu 4m hohen Anschüttungen archäologisch freizulegen, da diese Auflast zu Rissen in den darunterliegenden, mittelalterlichen Gewölben geführt haben.
Die Wiederherstellung der Altane erfolgt auf Höhe des barocken Niveaus mit einer massiven Dachstruktur. Diese wird so zum klar definierten räumlichen Abschluss des Grabungsbereiches, aber auch zu einer großzügigen, befahrbaren Verkehrsfläche, die das Prinzip der Altane einlöst und über den Wirtschaftshof und ehem. „Apothekergarten“ oberhalb der Apsis der gotischen Veitskapelle eine Zufahrt erhält. Entlang der Auflager dieses Daches sind Glasflächen bandförmig angeordnet, die Sichtbeziehungen zwischen Altane, barocker Ostfassade und Grabung ermöglichen. Zudem ist auf diese Weise eine vorteilhafte natürliche Belichtung für die Ausstellungsräume gewährleistet. Die Dachkonstruktion besteht aus einer befahrbaren Stahlbetondecke im Verbund mit Stahl-I-Trägern, deren Errichtung unter größtmöglicher Schonung der Archäologie weitgehend unterstellungsfrei erfolgen konnte.
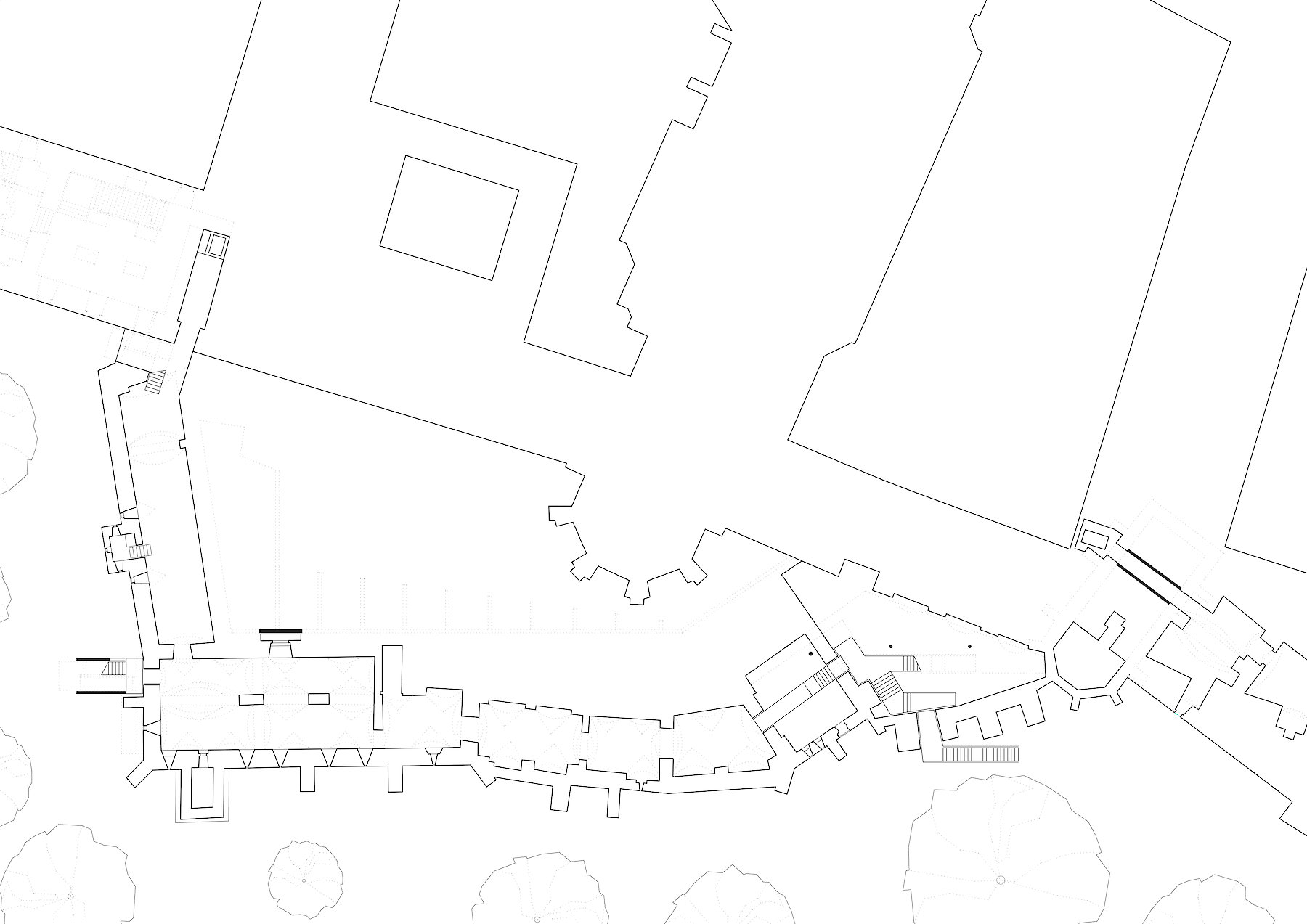
Der so entstehende, ca. 75m lange, in Nord-Südrichtung orientierte archäologische Schauraum wird südlich, im Bereich des mittelalterlichen Abtshauses mit raumhoher Verglasung, die Aussicht auf den barocken Bibliothekstrakt und das Kamptal ermöglicht, abgeschlossen. Zur weiteren Aussicht und Belüftung werden ursprünglich in der Stützmauer vorhandene, abgemauerte Fensteröffnungen wiederhergestellt.
Der Zugang, der im Bereich der zu schließenden Durchfahrt vom Kirchhof zur Altane als großzügiger Empfangsbereich geschaffen, und in dem die bisher in das barocke Ensemble integrierte mittelalterliche Veitskapelle denkmalpflegerisch freigelegt und zugänglich gemacht wird, erfüllt den Wunsch nach einem zentralen Besucherfoyer für das gesamte Ausstellungsareal. Die Strukturierung der internen Erschließungen erlaubt den Besucher/innen die unterschiedlich, historisch gewachsenen Ebenen zu überblicken und nach Eintritt in die jeweilige Ebene eine klare Orientierung im gesamten Ausstellungsbereich.
Im zweiten Bauabschnitt wurden für den barrierefreien Zugang des „Gartens der Stille“ aus dem Eingangsfoyer im Kaisertrakt die notwendige Räume und ein Lift errichtet, der ebenso die Prunkräume im Obergeschoss des Kaisertraktes erschließt.
Die dritte Bauphase schafft mit den ehemaligen Erdgeschossräumen des mittelalterlichen Abtshauses und den Renaissance-Mönchszellen auf der Ebene-2 nun auch eine räumliche Verbindung unterhalb der Altane zwischen dem barocken Kaiser- und Bibliothekstrakt Joseph Munggenasts von 1740 (1730-1743).

























































































