Ausstellungsräume, Ateliers, Artist in Residence
Umbau + Erweiterung
4.700 m²
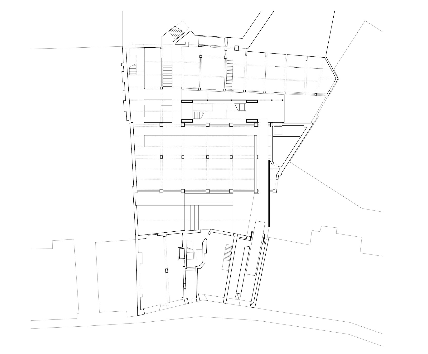
Die neuen Ausstellungsräume und Künstlerateliers der Waygood Gallery werden in ein bestehendes Hofgebäude eingefügt, das sich an der High Bridge Street im historischen Zentrum von Newcastle befindet.
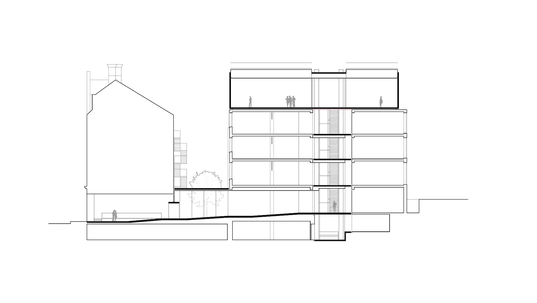
Dem denkmalgeschützten Industriebau ist zum Stadtraum hin ein Wohngebäude aus dem 19. Jahrhundert vorgelagert, das im Erdgeschoß den neuen Zugang zur Gesamtanlage aufnimmt.
Um so wenig wie möglich in den historischen Bestand eingreifen zu müssen, werden Erschließung und Versorgung im bestehenden Innenhof des Fabrikbaues eingefügt. Dadurch verbinden sich in zentraler Lage alle Atelierebenen mit den Ausstellungssälen, die sich nunmehr als neuer, oberer Gebäudeabschluss in der Stadtsilhouette entsprechend deutlich abzeichnen.
Die stützenfreien Ausstellungsräume werden über eine Oberlichtkonstruktion mit Tageslicht versorgt, das Treppenhaus über zenitale Lichtbänder.













































