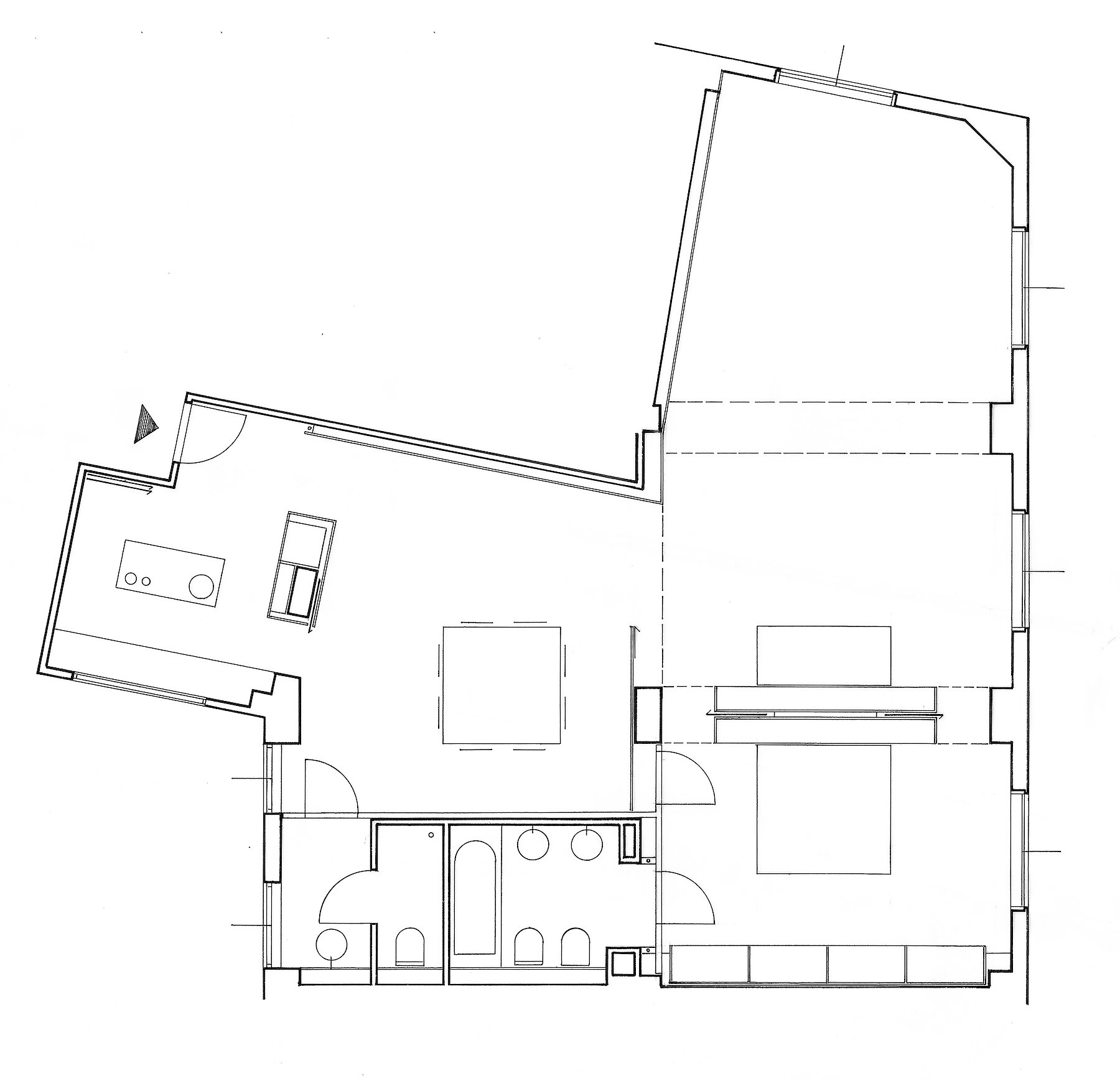
Wohnung
1995–2002
Umbau
216 m²
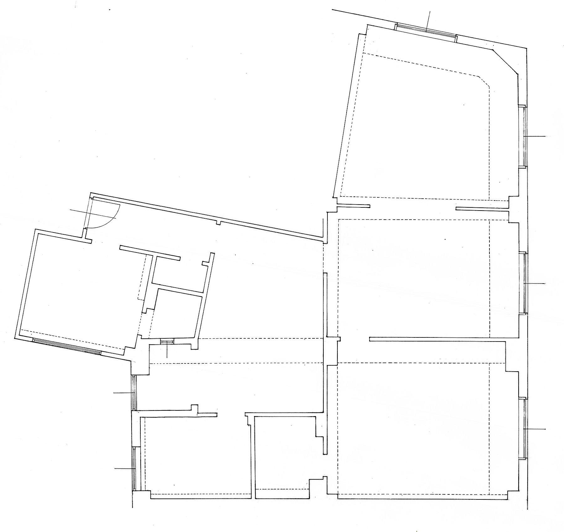
Alle vorhandenen Trennwände der Wohnung im Hochhaus Herrengasse waren zu entfernen um zwischen der tragenden Struktur von 1930 einen großzügigen Raumeindruck zu bewirken.
Innerhalb der neu entstandenen Flächen wurden die erforderlichen Einbauten in einer Weise angeordnet die von möglichst vielen Stellen der Wohnung aus den Blick über die Dachlandschaft des historischen Stadtzentrum ermöglicht. Die neuen unterteilenden Elemente, von Anfang an dem Charakter der Möblierung verpflichtet, sind durch verschwindende Schiebetüren trennbar, die je nach Bedarf eine Teilung der Wohnung in Einzelräume verschiedener Größe ermöglichen und dadurch das Raumgefühl dem jeweiligen Anlass anpassen. Die beabsichtigte räumliche Gesamtwirkung sollte an ihren Oberflächen durch die Verwendung von nur zwei Materialien , Holz und Aluminium noch zusätzlich verstärkt werden. Um den flächigen, konturlosen Eindruck des Holzbodens in einem anderen Material zu wiederholen, wurden die Aluminiumpanele einheitlich als Tafeln gleichen Zuschnittes regelmäßig angeordnet. Diese Panele bieten ohne sichtbare Beschlagsteile auch keinen Hinweis auf die dahinter liegende Nutzung. Die abstrakten Aluminumflächen streuen zusätzlich das Licht einem Reflektor gleich in die Tiefe der Wohnung und werden so zum Kontrast und zweckgebundenen Hintergrund für jede Form von gerichteten Licht. Die Gegensätzlichkeit der beiden neuen Materialien wiederholt sich somit auch in Form von zwei stets präsenten Lichtqualitäten.






























































