Museum
2010
Wettbewerb + Umbau + Erweiterung
10.600 m²
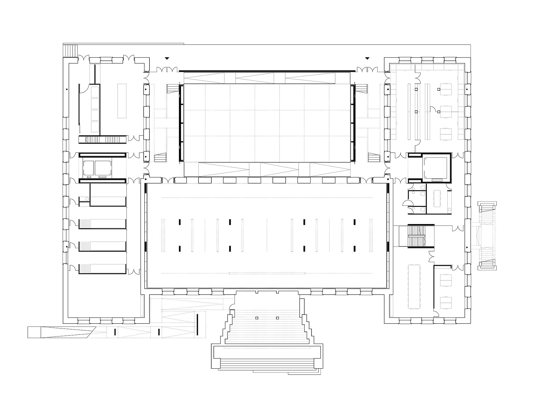
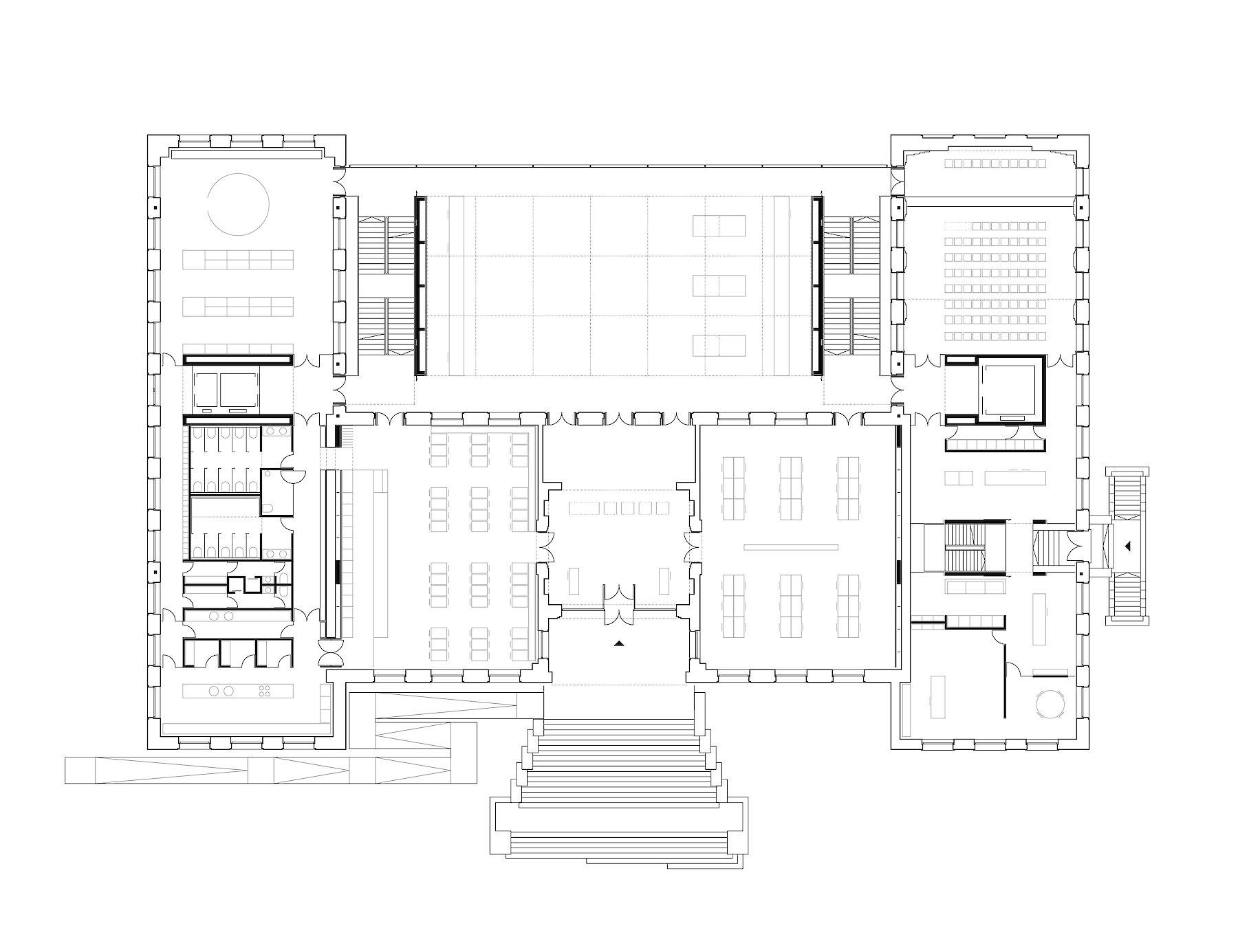
Die erforderliche Erweiterung orientiert sich an der räumlichen Struktur des Eastman Gebäudes im Park Leopold, das so zum Grundgerüst einer Neuplanung wird. Das Grundmuster des Baubestandes wird im Innenhof, und über den Oberlichtsälen mit neuen Räumen fortgesetzt.
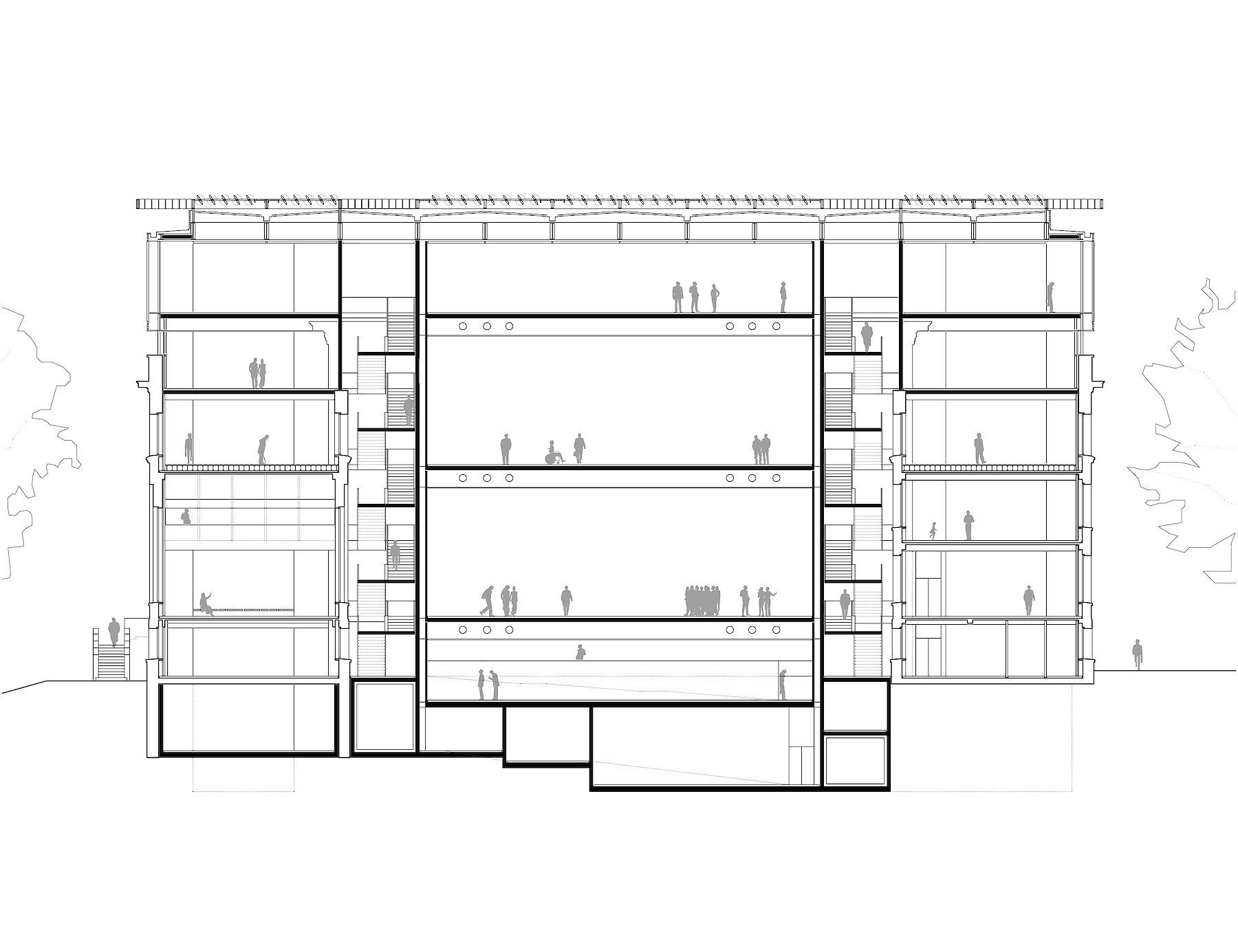
Der Einbau im Innenhof schafft eine großzügige Foyerhalle, Ausstellungsräume und zwei neue Fluchttreppenanlagen die sämtliche Ebenen des Ausstellungsgebäudes miteinander verbinden. Die Lage der Treppenanlagen verschafft den Besuchern nicht nur Orientierung und einen Überblick über die Anordnung der Ausstellungsräume, sondern sie bietet auch die Möglichkeit zu einer vielfältigen räumlichen Wahrnehmung, die von Blickbeziehungen in den Außenraum, in das Raumvolumen der Ausstellungshallen, sowie in die Tektonik der ehemaligen Außenfassaden charakterisiert ist.
Entsprechend der neuen Nutzung werden die Räume des Bestands weitgehend von Einbauten entlastet, um möglichst großzügige, flexibel unterteilbare Flächen zu schaffen.
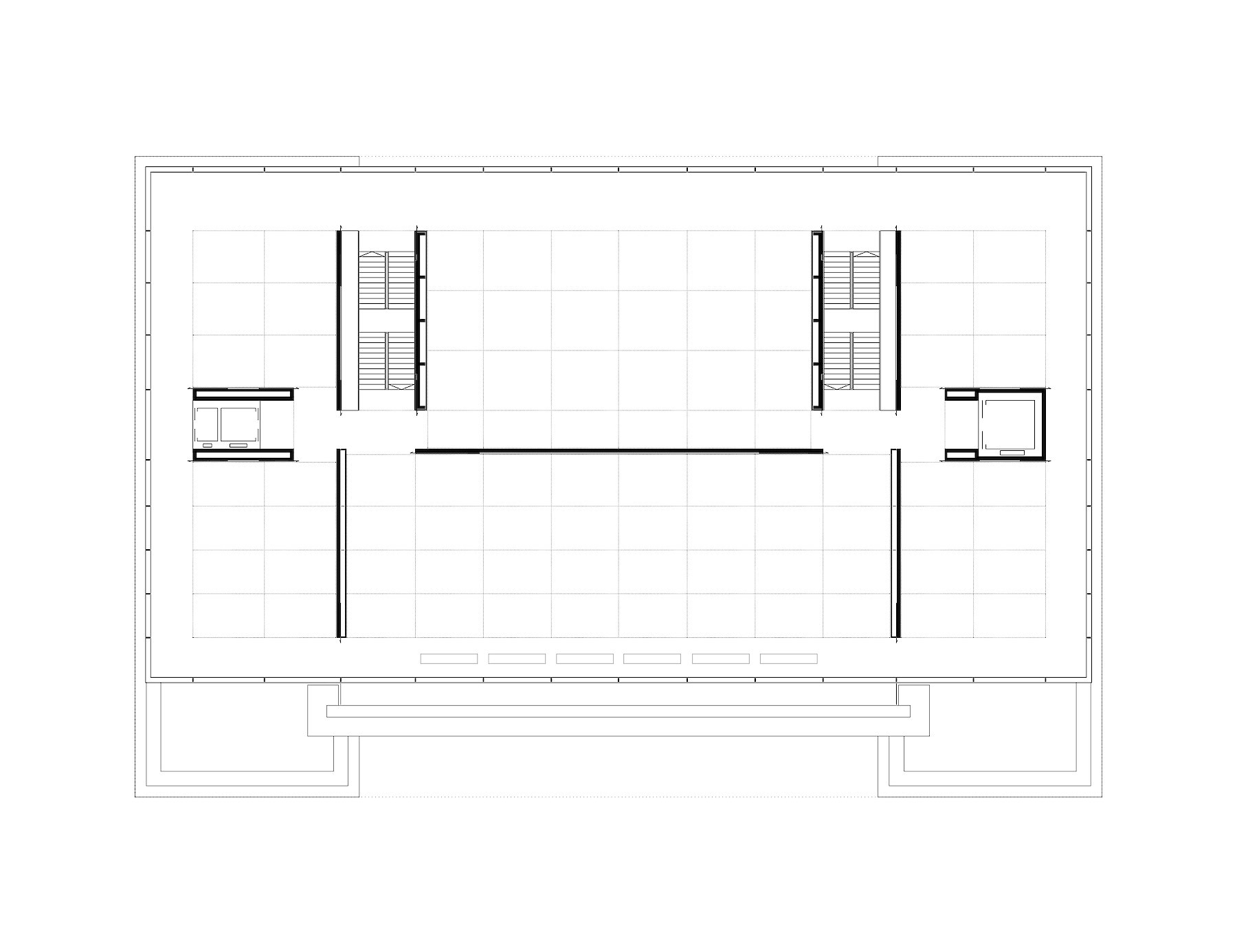
Die im Innenhof praktizierte, ablesbare Trennung von Altbestand und neuem Eingriff, wird oberhalb der bestehenden Dachflächen ebenfalls mit einem neuen Volumen eingelöst, das den Raumbedarf für zusätzliche Ausstellungsflächen aufnimmt. Material und Tektonik bilden hier gemeinsam einen Gegensatz, der damit zur offensichtlichen Zäsur zwischen zwei Bauphasen wird.
An der höchsten Stelle des Gebäudes wird auf dem gesamten neuen Ausstellungsniveau durch die Glasfassade eine Sichtbeziehung in die Nachbarschaft etabliert. Auf diese Weise ist der Rundblick in den Umgang der Besucher miteinbezogen, wird selbst zum Exponat aber auch zum ständigen Bezugspunkt der Orientierung.
















































